Leave a Message

By providing your contact information to CIRE First Coast, your personal information will be processed in accordance with CIRE First Coast's Privacy Policy. By checking the box(es) below, you consent to receive communications regarding your real estate inquiries and related marketing and promotional updates in the manner selected by you. For SMS text messages, message frequency varies. Message and data rates may apply. You may opt out of receiving further communications from CIRE First Coast at any time. To opt out of receiving SMS text messages, reply STOP to unsubscribe.

Thank you for your message. We will be in touch with you shortly.

Explore Our Properties

Property Description

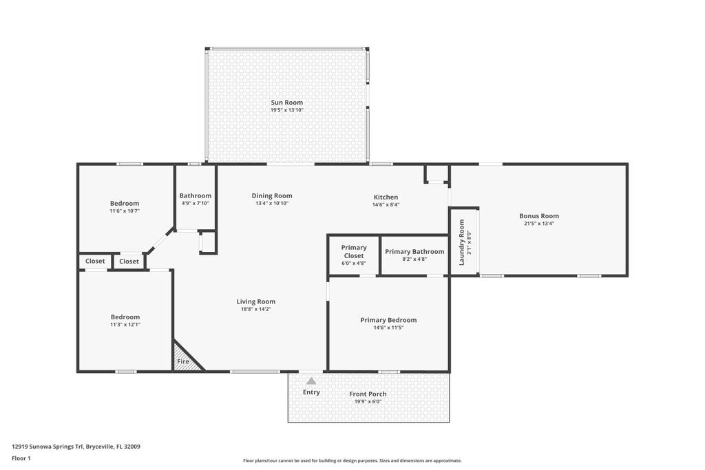
At the end of a wooded driveway, this beautifully updated 3-bedroom, 2-bath home and bonus room sits on a picturesque 2-acre lot filled with mature landscaping and shade trees, offering privacy and a peaceful setting. A fully screened back patio provides the perfect space to relax and enjoy the natural surroundings. The home is on a slab foundation and showcases a rich dark-stained Western Red Cedar exterior with a termite bond. Major upgrades include a new roof, new 3-ton HVAC system, and a complete replumb in 2023, ensuring modern efficiency and peace of mind. Inside, the living room features a cathedral ceiling and a brick, wood-burning fireplace that anchors the space with warmth and character. Also a dining area, ideal for gatherings, while the remodeled kitchen is designed for style and function with quartz countertops, soft-close cabinetry, stainless steel appliances (2019), an induction cooktop, and a convenient breakfast bar for casual dining. The primary suite has a walk-in shower, while two additional bedrooms and a versatile bonus room provide flexible living options for guests, a home office, or hobby space. Outdoors, the property continues to impress with a 24x24 metal barn, a barbecue barn with metal roof and power, and a fire pit perfect for evenings under the stars. The carport accommodates your vehicles and an RV and includes 30-amp service. Established landscaping includes blueberry bushes, persimmon trees, crape myrtles, and more, adding natural beauty, shade, and seasonal enjoyment throughout the property. This unique property offers a rare blend of thoughtful upgrades, rustic charm, and open space--ideal for those seeking privacy, functionality, and a true indoor-outdoor lifestyle.

Overview

Property Status
Pending
Lot Size
2.08 Acres
MLS ID
115129
Property Type
Residential
Year Built
1991

Features & Amenities

Total Area
1,504 Sq.Ft.
Architecture Styles
One Story
Stories
1
Water Source
Private, Well
Pool
None
Roof
Shingle
Parking
Carport, Driveway, RV Access/Parking
Heat Type
Central, Electric
Air Conditioning
Central Air, Electric
Fireplace
Wood Burning Stove
Appliances
Dishwasher, Refrigerator, Stove
Other Interior Features
Ceiling Fan(s), Fireplace, Split Bedrooms, Storage, Vaulted Ceiling(s), Wood Burning Stove, Workshop
Sewer
Septic Tank
Other Exterior Features
Fruit Trees
Sales Price
$385,000
Zoning
OR

Downloads

12919 SUNOWA SPRINGS TRAIL

Schedule a Tour

We would love to help you see this beautiful home! As a full-service brokerage, we can help you tour. Please submit an offer, and answer questions about the buying process.

Thank you

for your interest in 12919 SUNOWA SPRINGS TRAIL, Bryceville, FL 32009

12919 SUNOWA SPRINGS TRAIL
Navigate

Mortgage Calculator

Estimate your monthly mortgage payment, including the principal and interest, property taxes, and HOA. Adjust the values to generate a more accurate rate.

$0,000 Your Payment 20 15 65
$0,000 Your Payment

I'm Interested In

12919 SUNOWA SPRINGS TRAIL

or
  • CallStephanie DeAngelo

    License #3386734

    (904) 710-9829
  • Follow Us On Instagram